Daten

  • Objekt-Nr.0390
  • OrtDuisburg
  • ObjektartEtagenwohnung
  • Wohnfläche155.00 m²
  • Schlafzimmer3
  • Badezimmer1
  • separate WCs1
  • Balkone1
  • Stellplätze1
  • Garagen1

Kosten

  • Kaltmiete1.100,- €
  • Heiz-/Nebenkosten400,- €
  • Warmmiete1.560,- €

Objekt

Inmitten des Duisburger Stadtteils Alt-Homberg, auf der linken Rheinseite von Duisburg, befindet sich das denkmalgeschützte Gut Haniel – ein Wohnstandort mit besonderem Charme und historischer Ausstrahlung. Zentral gelegen und dennoch angenehm ruhig, vereint der Gutshof urbanes Leben mit naturnahem Wohnen.

Ein alter, gewachsener Baumbestand umgibt das Gelände des Gutshofes und schafft eine außergewöhnliche, parkähnliche Atmosphäre. Direkt angrenzende Grün- und Parkanlagen unterstreichen den Charakter einer grünen Oase und bieten ein hohes Maß an Privatsphäre sowie Lebensqualität.

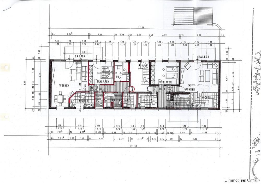
Bei der angebotenen Immobilie handelt es sich um eine großzügige und stilvolle Wohnung in einem historischen Gebäudeensemble. Auf ca. 155 m² Wohnfläche erwarten Sie vier gut geschnittene Zimmer: ein weitläufiges Wohnzimmer, ein Schlafzimmer, ein Gästezimmer sowie ein ausgebauter Spitzboden, der zusätzliche Nutzungsmöglichkeiten bietet. Ergänzt wird das Raumangebot durch eine Küche, eine geräumige Diele, ein Badezimmer, ein separates Gäste-WC sowie einen praktischen Hauswirtschaftsraum.

Ein großer Balkon, auf den man sowohl vom Wohnbereich als auch vom Schlafzimmer aus gelangt, lädt dazu ein, entspannte Stunden im Freien zu verbringen und den Blick ins Grüne zu genießen. Zur Wohnung gehört zudem ein eigener Kellerraum. Eine Garage für Ihren PKW ist für den Preis von € 60,-- im Monat hinzu zu mieten und bereits in der Gesamtmiete enthalten.

Bitte beachten Sie: Für den ausgebauten Spitzboden liegt derzeit kein aktueller Grundriss vor. Der beigefügte Grundriss stellt ausschließlich die Wohnräume der ersten Ebene dar.

Ein Energieausweis ist nicht erforderlich, da es sich um ein denkmalgeschütztes Objekt handelt.

Diese besondere Wohnung verbindet historischen Charakter mit großzügigem Wohnen in einer außergewöhnlichen Lage – ideal für Mieter, die das Besondere suchen.

Ein Blick sagt mehr als 1.000 Worte... ... da eine Immobilie immer eine individuelle Sache ist. Der persönliche Eindruck vor Ort ist durch nichts zu ersetzen. Zögern Sie also nicht und vereinbaren Sie mit uns einen Besichtigungstermin.

Ausstattung

  • Denkmalgeschütztes Gebäude
  • Balkon
  • Holzfenster mit Sprossen und Wärmeschutzglas
  • Innenfensterbänke in Naturstein Carrara-Marmor
  • Innentüren als Naturholztüren, furniert
  • Wohnzimmertür mit Glasausschnitt
  • Parkettund Fliesenböden
  • Zentralheizung mit Plattenheizkörpern in den Wohnräumen
  • Badezimmer mit Badewanne und Dusche
  • Handtuchwärmetrockner im Badezimmer
  • Waschmaschinenund Trockneranschluss im Hauswirtschaftsraum
  • Attraktiv gestaltete Außenanlagen
  • Großzügige Garage

Grundrisse

Energieausweis

Der Energieausweis für diese Immobilie ist beantragt und liegt zur Besichtigung vor.

Lage

Das historische Gut Haniel befindet sich im Duisburger Stadtteil Alt-Homberg auf der linken Rheinseite im Westen von Duisburg. Die Lage verbindet eine ruhige, grüne Umgebung mit einer sehr guten Anbindung an die Metropolregion Rhein-Ruhr.
Alt-Homberg zeichnet sich durch seine gewachsene Struktur sowie weitläufige Grün- und Rheinflächen aus. Das Gut Haniel liegt in unmittelbarer Nähe zum Rheinufer und profitiert von einem hohen Freizeit- und Erholungswert. Spazier- und Radwege entlang des Rheins sowie die Nähe zu Naherholungsgebieten unterstreichen die attraktive Lage.
Die Verkehrsanbindung ist sowohl regional als auch überregional sehr gut. Über die nahegelegenen Autobahnen A40 und A42 bestehen schnelle Verbindungen in die umliegenden Städte wie Krefeld, Moers sowie in die Duisburger Innenstadt. Auch die Städte Essen und Düsseldorf sind in kurzer Fahrzeit erreichbar. Der öffentliche Personennahverkehr ist durch Busverbindungen in Richtung Homberg-Zentrum und Duisburg-Mitte sichergestellt.
Angebote des täglichen Bedarfs – darunter Einkaufsmöglichkeiten, Schulen, Kindergärten sowie medizinische Versorgung – befinden sich im nahen Umfeld. Die Kombination aus naturnaher Rheinlage, guter Infrastruktur und verkehrsgünstiger Anbindung macht den Standort Gut Haniel zu einer gefragten Wohnlage mit besonderem historischem Charakter.

Sonstige Angaben

Die Gesamtmiete in Höhe von monatlich 1.560,-€ setzt sich wie folgt zusammen:

Kaltmiete 1.100,-€

zzgl. Nebenkosten 400,-€

zzgl. Garagenmiete in Höhe von 60,-€

Bei Anmietung der Immobilie ist eine Kaution in Höhe von 2 Monatskaltmieten an den Vermieter zu entrichten.

Sollten Sie die Veräußerung Ihrer jetzigen Immobilie in Betracht ziehen, sprechen Sie uns an.

Nutzen Sie unseren „Alles-aus-einer-Hand-Service“.

Gerne stehen wir Ihnen für alle Ihre Fragen, Wünsche und Anregungen rund um den Immobilienerwerb und –verkauf zur Seite.

Alle im Angebot veröffentlichten Angaben, Daten sowie Informationen beruhen auf Angaben des Eigentümers bzw. sind aus Objektinformationen entnommen. Für die Richtigkeit dieser Aussagen sowie Schreibfehler übernehmen wir keine Haftung.

Wir bitten um Ihr Verständnis, dass wir nur vollständig ausgefüllte Kontaktformulare bearbeiten können.

Ansprechpartner
Immobilienmakler Moers

IL Immobilien GmbH
Uerdinger Straße 13
47441 Moers
Tel. 02841 6085475
kunden@il-immobilien-moers.de

Anfrage zur ImmobilieAnfrage zur Immobilie