Castrum Duisburg-Homberg 11 individuelle Lebensräume

Daten
- Objekt-Nr.0228_01
- OrtDuisburg
- ObjektartEtagenwohnung
- Zimmer3
- Baujahr
- Wohnfläche70.49 m²
- Schlafzimmer2
- Badezimmer1
- Balkone1
- ZustandErstbezug
Kosten
- Kaufpreis Immobilie ist verkauft
- Käuferprovisionkeine zusätzliche Käuferprovision.
Objekt
Wir freuen uns über Ihr Interesse an unserer neuen Immobilie CASTRUM in Duisburg-Homberg. Unser frisch konzipiertes Bauwerk folgt einer klaren Struktur und umgibt sich dabei mit einer puren Ästhetik, die Ihnen den Freiraum lässt, den Sie sich für Ihre persönliche Entfaltung wünschen. CASTRUM ist ansprechend und komfortabel zugleich, denn wir haben an alles gedacht, was Ihren Alltag unbeschwerter macht:
» barrierefreier Weg vom Auto zur Wohnung
» barrierefreie Bäder
» großer, heller Aufzug für Rollstuhlfahrer
Unsere 11 individuellen Lebensräume, deren Größen von 44 m² bis 102 m² variieren, sind perfekt für Jung und Alt. Von der kompakten 2-Zimmer-Wohnung bis zur großzügigen 3-Zimmer-Wohnung sind alle Wohnungen barrierefrei ausgestattet und ihre Balkone, Terrassen, Nebenräume und Kellerersatzräume ebenfalls barrierefrei erreichbar. Die stilvollen Bäder bieten Platz und Komfort für jede Lebenslage. Eine besondere Komfortzone versprechen unsere gut möblierbaren Balkone mit einer Tiefe von etwa zwei Metern. Das große helle Treppenhaus schafft Raum für nette Begegnungen mit den Nachbarn. Ihr PKW steht sicher in der Garage.
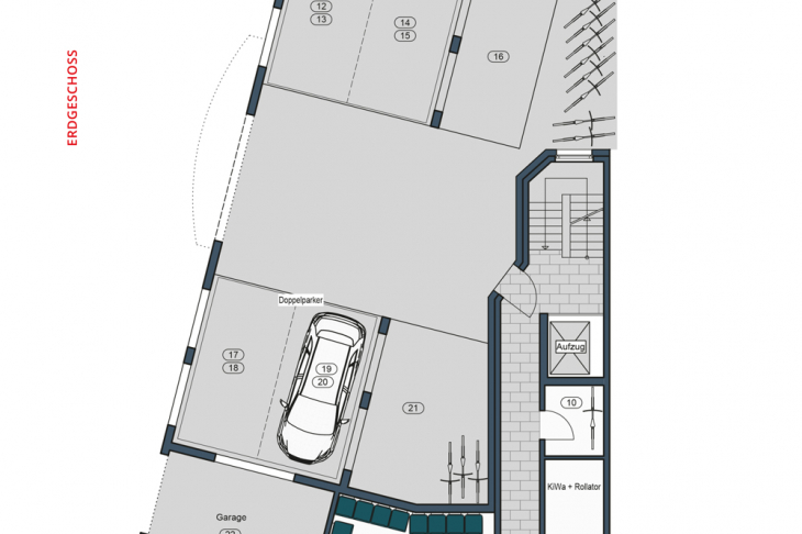
In unserer Sammelgarage im Erdgeschoss können Sie optional 1 Garage, 2 offene Stellplätze oder 8 Doppelparker-Plätze hinzukaufen.
Unsere neue Baumaßnahme wird mit besonderem Augenmerk auf Kellerabdichtung, Dämmung und Luftdichtigkeit von einem Sachverständigen bzw. vom TÜV begleitet.
Bei der hier angebotenen Wohnung handelt es sich um die Wohnung Nr. 1 im 1. Obergeschoss ca. 70,49 m², bestehend aus:
3 Zimmern, offen gestalteter Küche, Diele, Bad, Abstellraum und Balkon.
Ausstattung
- Wärmedämmung gemäß GEG / KfW-55
- Kunststofffenster sind außen und innen weiß mit 3-Scheiben-Isolierverglasung
- Fenstergriffe bestehen aus Edelstahl
- Elektrische Rollläden
- Hochwertige, moderne Fliesen und Parkettböden
- Mattweiße Innentüren
- Wärmeversorgung sowie Warmwasserbereitung durch Fernwärme
- Beheizung der Wohnräume über Fußbodenheizung
- Modernes Sanitär
- Balkon
- Die Wohnungen werden komplett mit Malerarbeiten ausgestattet
Grundrisse
Energieausweis
Der Energieausweis für diese Immobilie ist beantragt und liegt zur Besichtigung vor.
Lage
Duisburg ist eine kreisfreie Großstadt, die an der Mündung der Ruhr in den Rhein liegt. Die Stadt gehört der Metropolregion Rhein-Ruhr mit rund zehn Millionen Einwohnern an und ist Teil der wunderschönen Gegend am Niederrhein und des einzigartigen Ruhrgebiets. Mit knapp einer halben Million Einwohnern ist Duisburg nach Köln, Düsseldorf, Dortmund und Essen die fünftgrößte Stadt in Nordrhein-Westfalen.
Wer meint, Duisburg ist grau, der täuscht sich sehr, hält die Stadt doch eine bunte Palette aus Natur, Kultur und Freizeit bereit. Geschäftiges Treiben am „Duisburger Innenhafen“, spektakuläre Industriekulissen wie der „Landschaftspark Duisburg-Nord“ und mondäne Kunstobjekte wie die begehbare Achterbahn-Skulptur „Tiger & Turtle“ sowie zahlreiche Seenlandschaften zeigen den Facettenreichtum der Stadt. Ganz nebenbei werden jede Menge Kultur- und Sportevents geboten.
Unser neues Objekt CASTRUM entsteht im linksrheinischen Duisburger Stadtteil Homberg. Zusammen mit Hochheide war Alt-Homberg jedoch bis zur Eingemeindung in die Stadt Duisburg im Jahre 1975 als die Stadt Homberg am Niederrhein bekannt und gehörte dem Kreis Moers an.
Auch wenn man heute vom Duisburger Westen spricht, zu dem Homberg gerechnet wird, so verschwimmt die Grenze zur Stadt Moers und die Nähe zum Niederrhein ist allgegenwärtig. Das Moerser Erholungsgebiet Schwafheim wie das Duisburger Naherholungsgebiet Uettelsheimer See liegen in der unmittelbaren Umgebung und versprechen wertvolle Auszeiten in der Natur. Unzählige Parkanlagen mit altem Baumbestand und die wunderbaren Rheinauen machen Homberg zur Stadt im Grünen und ergänzen die naheliegenden Seen zu einem Biotop-Verbund.
Wer CASTRUM zu seinem neuen Zuhause macht, hat die Qual der Wahl zwischen wunderschöner Natur am Niederrhein und historischer Industriekultur im Ruhrgebiet.
Gut erreichbare Autobahnen wie die A40, A42 und A57 sorgen für eine optimale Anbindung nach Köln und Düsseldorf sowie in das Ruhrgebiet oder nach Aachen und damit in den Benelux-Raum. Nur 30 Autominuten zu den Flughäfen in Düsseldorf und Weeze garantieren eine direkte Verbindung zwischen Duisburg-Homberg und der ganzen Welt. Dank der zentralen Lage ist auch die Anbindung an den öffentlichen Nahverkehr der Region, durch den nur knapp 5 km entfernt liegenden Bahnhof der Stadt Moers, gegeben. Mit den Städten Duisburg, Essen, Oberhausen, Krefeld, Düsseldorf und Köln steht Ihnen damit ein interessantes Kulturangebot in kurzer Entfernung zur Auswahl, das seinesgleichen suchen kann.
Aufgrund der idealen Lage im Duisburger Westen und an der Grenze zu Moers ist nicht nur die Moerser City mit einem großen Angebot an Shops, Kultur und Gastronomie in greifbarer Nähe – auch die Geschäfte des täglichen Bedarfs sowie Ärzte, Kirchen, und Banken usw. sind nur einen Katzensprung von CASTRUM entfernt.
Sonstige Angaben
Da es sich um einen Neubau handelt, steht der Energieausweis noch nicht zur Verfügung, wird aber zeitnah erstellt.
Sollten Sie die Veräußerung Ihrer jetzigen Immobilie in Betracht ziehen, sprechen Sie uns an.
Nutzen Sie unseren „Alles-aus-einer-Hand-Service“.
Gerne stehen wir Ihnen für alle Ihre Fragen, Wünsche und Anregungen rund um den Immobilienerwerb und –verkauf zur Seite.
Alle im Angebot veröffentlichten Angaben, Daten sowie Informationen beruhen auf Angaben des Eigentümers bzw. sind aus Objektinformationen entnommen. Für die Richtigkeit dieser Aussagen sowie Schreibfehler übernehmen wir keine Haftung.
Wir bitten um Ihr Verständnis, dass wir nur vollständig ausgefüllte Kontaktformulare bearbeiten können.