Daten

  • Objekt-Nr.0386
  • OrtMoers
  • ObjektartZweifamilienhaus
  • Zimmer7
  • Baujahr
  • Grundstück890.00 m²
  • Wohnfläche239.00 m²
  • Schlafzimmer5
  • Badezimmer2
  • separate WCs1
  • Terrassen1
  • Zustandneuwertig

Kosten

  • Kaufpreis 649.000,- €
  • Käuferprovision3,57 % inkl. MwST.

Objekt

Dieses charmante Ensemble von modernisiertem Altbau und hochwertig erstelltem Neubau bietet seinen neuen Eigentümern Wohnkomfort der Extraklasse!

Zwei voneinander getrennte Wohneinheiten mit separaten Eingängen; ideal für Paare und Familien mit der Möglichkeit zur Vermietung einer Wohneinheit oder dem Modell des Mehrgenerationenwohnens. Jeder für sich, doch nah beieinander! Entscheiden Sie, welches Wohnkonzept Sie in dieser außergewöhnlichen Immobilie umsetzen möchten.

Das freistehende und hochwertig ausgestattete Zweifamilienhaus in begehrter Lage von Moers Repelen beeindruckt mit seiner modernen und äußerst gepflegten Ausstattung und dem wunderschön angelegten Garten. Eine Teilunterkellerung ist gegeben.
Mit Baujahr 1903 wurde der Altbau errichtet, im Jahr 2016 der Neubau fertig gestellt als auch die Modernisierung des Altbaus inkl. Elektrik und Wasserleitungen vorgenommen .
Mit einer Wohnfläche von ca. 77 qm befindet sich die eine der beiden Wohneinheiten im Erdgeschoss des hochwertig sanierten Altbaus.
Über einen eigenen Eingang betretend empfängt Sie der freundliche und mit hellen Granitfliesen ausgestattete Eingangsbereich und Flur. Von hier aus gelangen Sie in den stilvoll-gemütlich gestalteten Wohn- und Essbereich inklusive Küche. Ein Durchbruch verbindet beide Räume und schenkt das Gefühl von offener und moderner Großzügigkeit.
Das gegenüberliegende Schlafzimmer bietet Raum für entspannte Atmosphäre und ruhigen Schlaf.
Ein neuwertiges und komfortables Duschbad mit Fußbodenheizung verfügt neben der begehbaren Dusche, der hochwertigen Keramik und dem Handtuchheizkörper auch über den Anschluss für eine Waschmaschine. Das vorhandene Fenster versorgt den Raum mit Tageslicht und Frischluft.

Die zweite, für sich geschlossene, Wohneinheit befindet sich zu Teilen in Neu,- und Altbau des Ensembles und erstreckt sich mit einer großzügigen Wohnfläche von ca. 162 qm auf zwei Etagen, stilvoll verbunden über eine elegante Treppe, dessen Holzstufen natürliche Wärme ausstrahlen.
Als Wärmequelle für die kalten Tage des Jahres versorgen Fußbodenheizung und Heizkörper die Räumlichkeiten mit wohliger Temperatur.
Auch diese Wohnung verfügt über einen eigenen Zugang im Erdgeschoss und begrüßt Sie beim Eintreten mit einem einladenden und hellen Ambiente. Auf dem Weg in den großzügigen Wohn- und Essbereich inklusive Küche gehen Sie vorbei am rechtsgelegenen modernen Gäste-WC, welches über ein Fenster verfügt.
Die hochwertige und charmante Einbauküche der Fa. Häcker besticht durch nachhaltige Qualität, ästhetisches Design und Funktionalität. Ein Fenster sorgt für angenehmen Lichteinfall und frische Luft nach ausgiebigen Kochstunden.
Seitlich erstreckt sich das wundervolle große Wohn- und Esszimmer; offen, charmant und großzügig.
Bodentiefe Fenster gewähren einen freien und traumhaften Ausblick über die weitläufige Terrasse in den liebevoll angelegten und sehr gepflegten Garten. Der klar strukturierte Gartenraum wirkt modern, aufgeräumt und weitläufig. Während ein Rasenroboter und das installierte Bewässerungssystem die Gartenpflege erleichtern, genießen Sie die durch Sonnenschutzmarkise beschattete Terrasse vor dem Gartenhaus.
Im Obergeschoss der Wohneinheit erwarten Sie vier weitere Räume, welche als Schlaf,- Arbeits,- oder Kinderzimmer bewohnt werden können, ganz nach Belieben und Bedarf. Die Wohnräume sind über den warmen und behaglich gestalteten Flurbereich zu betreten. Exklusive Holzdielen auf dieser Ebene strahlen Geborgenheit aus und sorgen für eine gemütliche Atmosphäre.
Das Wohlfühlbad sorgt mit seiner hochwertigen Ausstattung, Walk-In-Dusche mit Glasabtrennung und Badewanne für ein weiteres Highlight dieses Objektes. Deckenspots und Tageslicht versorgen das Bad mit einer gleichmäßigen Grundbeleuchtung und gezielten Akzenten.

Ein Verbindungsflur bietet die Möglichkeit, beide Wohneinheiten miteinander zu vereinen oder mittels einer Türe zu trennen.

Dem Zweifamilienhaus zugehörig ist eine übergroße Garage.
Die an das jetzige Schlafzimmer angrenzende Aussenfläche schenkt einen herrlichen Blick in die Weite und könnte nach Absicherung durch Balustraden als Dachterrasse genutzt werden.

Ein Verbindungsflur bietet die Möglichkeit, beide Wohneinheiten miteinander zu vereinen oder mittels einer Türe zu trennen.

Dem Zweifamilienhaus zugehörig ist eine übergroße Garage, in welcher Ihr KFZ sicher geparkt werden kann.

Beide Wohneinheiten in Verbindung mit der wunderbaren Grünflächenanlage bieten höchsten Wohnkomfort; die Kombination von charmantem Altbau und neuzeitlichem Anbau in zwei voneinander getrennten Wohneinheiten sind ein absolutes Highlight und seinesgleichen suchend.

Ein Blick sagt mehr als 1000 Worte....
Wir freuen uns, Ihnen diese exklusive Immobilie persönlich vorstellen zu dürfen und sehen Ihrer Anfrage mit Freude entgegen!

Ausstattung

  • Böden:
  • EG Neubau: Fliesen hellgrau
  • OG Altbau: überall Lindura Holzboden von Meister (außer im Bad)
  • EG Altbau Flur: Granit
  • EG Altbau Wohnen, Küche, Schlafen: Designboden von Meister (Vinyl)
  • Heizung:
  • Gasbrennwerttherme von Buderus (2021)
  • Neubau und Bad Altbau Fußbodenheizung
  • Altbau oben und unten Heizkörper
  • Fenster: 2-fach verglaste Kunststofffenster, außen mit Aluvorsatzschale (innen weiß, außen RAL 7016)
  • Rollos: grau, elektrisch und alle mit „Shelly“ Rolladenschaltern nachgerüstet (Smart Home)
  • Raffstores im Wohnbereich zur Terrasse (auch mit Shelly steuerbar)
  • maßangefertigte Fliegengitter im ganzen Haus, außer Altbau EG
  • Satellitenschüssel
  • im Keller Kabel und DSL Anschluss vorhanden, Glasfaser beantragt
  • Bad unten: ebenerdige Dusche (1,00mx1,40m), Waschbecken und WC (spülrandlos) von Keramag, Handtuchhalter und Co. (Grohe), Handtuchheizkörper, Anschluss für Waschmaschine vorhanden
  • Bad oben: Dusche, Wanne, Waschbecken und WC (spülrandlos) von Keramag, Handtuchhalter und Co. (Keuco), Handtuchheizkörper (elektrisch)
  • Küchen beide von Häcker
  • Garage: Hörmann Sektionaltor (RAL 7016) mit zwei Handsendern
  • Im Außenbereich Neuanstrich Neubau mit Jahr 2024 mit hochwertiger Farbe von Keim
  • Brunnen zur Nutzung des Brunnenwassers im Garten
  • Gartenbewässerung der Beete mit Rainbird Tropfschlauch
  • Gartenhaus (3x3m plus Anbau 2x3m) mit Markise
  • Legizaun, Bepflanzung davor mit portugiesischer Lorbeerhecke
  • Hochwertige Rhomusleisten aus Lärchenholz als Wandverkleidung zum Nachbarn im Garten
  • 2 Außentore (WPC)
  • Segway Navimow i105 GPS Mähroboter von 2025 (optional)

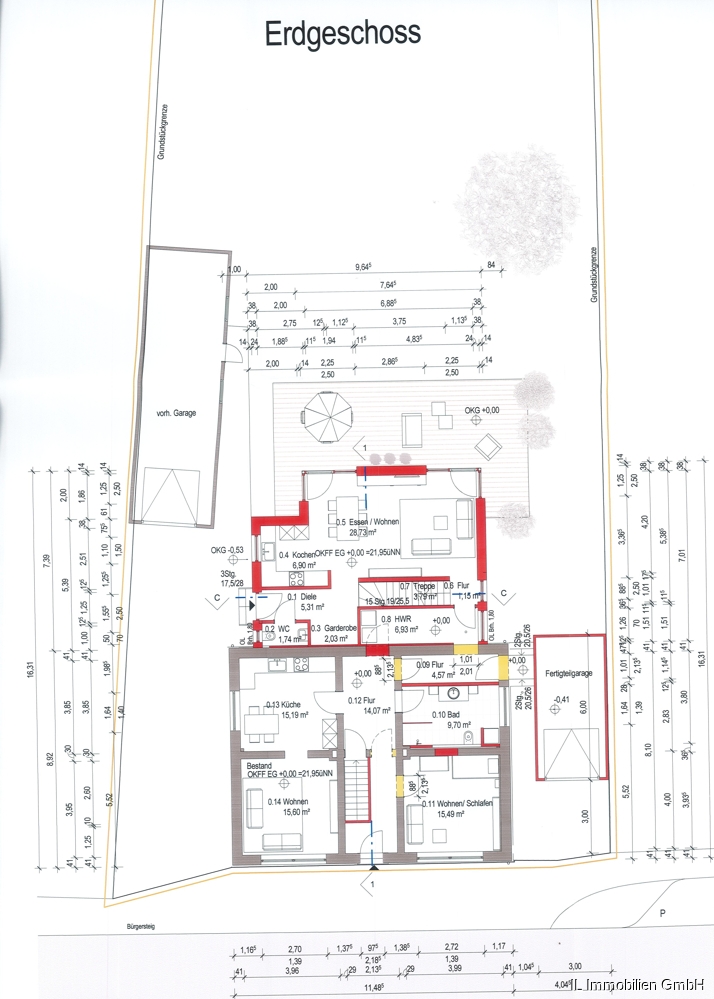
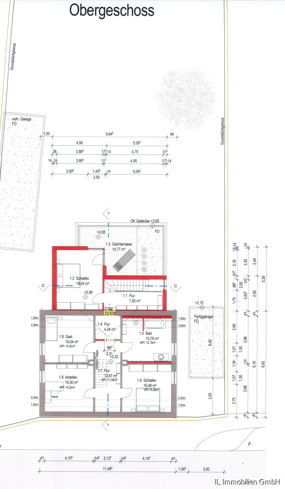
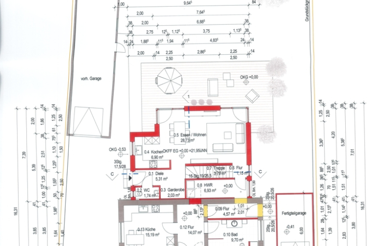
Grundrisse

Energieausweis

  • Energieausweistyp: Bedarfsausweis
  • Verbrauchskennwert: kWh/(m²*a)
  • Endenergiebedarf: 156.80 kWh/(m²*a)
  • Gültigkeit: 2036-03-19
  • Wesentliche Energieträger: Gas
  • Baujahr laut Energieausweis:
  • Energiekennwert:

Lage

Die Immobilie liegt im Stadtteil Repelen in Moers, der sich durch ihre ruhige, gewachsene Wohnlage auszeichnet. Für den täglichen Bedarf stehen Ihnen in der näheren Umgebung verschiedene Einkaufsmöglichkeiten, Apotheken und Ärzte zur Verfügung. Das Stadtzentrum von Moers mit seiner Altstadt, zahlreichen Cafés, Restaurants und Geschäften ist schnell erreichbar.
Die Stadt Moers liegt am unteren Niederrhein im Westen des Ruhrgebiets in Nordrhein-Westfalen und ist als kreisangehörige Stadt die größte des Kreises Wesel im Regierungsbezirk Düsseldorf. Aufgrund der Lage im Norden der Rheinschiene und im Westen des Ruhrgebiets wird Moers auch Drehscheibe am Niederrhein genannt. Moers zählt gute 100.000 Einwohner und ist die kleinste Großstadt Deutschlands, die weder kreisfrei noch Sitz eines Kreises ist.
Moers als Einkaufsstadt ist einzigartig in der Region. Die Kombination aus individuellen Geschäften sowie attraktiven Shops bekannter Labels, einer malerischen Altstadt und dem an die Einkaufsmeile angrenzenden Schloss- und Freizeitpark machen das Besondere aus. Neben einer optimalen Schulversorgung hält die Stadt außerdem ein umfangreiches Bildungsangebot der Berufskollegs, der Bildungseinrichtungen freier Träger, der Moerser Musikschule und der Volkshochschule bereit.
Die Anbindung an den öffentlichen Nahverkehr über Buslinien ist vorhanden und die Verbindung zum überregionalen Verkehrsnetz ist hervorragend: Die Autobahnen A40, A42 und A57 sind in kurzer Zeit erreichbar und ermöglichen eine zügige Anfahrt anderer Städte im Ruhrgebiet und am Niederrhein. Die Metropole Düsseldorf mit dem Flughafen verbindet Sie auch international.
Insgesamt bietet die Lage der Immobilie eine ideale Kombination aus ruhigem Wohnen, städtischem Leben, guter Anbindung und vielfältigen Freizeitmöglichkeiten.

Sonstige Angaben

Sollten Sie die Veräußerung Ihrer jetzigen Immobilie in Betracht ziehen, sprechen Sie uns an.

Nutzen Sie unseren „Alles-aus-einer-Hand-Service“.

Gerne stehen wir Ihnen für alle Ihre Fragen, Wünsche und Anregungen rund um den Immobilienerwerb und –verkauf zur Seite.

Alle im Angebot veröffentlichten Angaben, Daten sowie Informationen beruhen auf Angaben des Eigentümers bzw. sind aus Objektinformationen entnommen. Für die Richtigkeit dieser Aussagen sowie Schreibfehler übernehmen wir keine Haftung.

Wir bitten um Ihr Verständnis, dass wir nur vollständig ausgefüllte Kontaktformulare bearbeiten können.

Besuchen Sie unsere Homepage www.il-immobilien-moers.de. Hier finden Sie weitere interessante Angebote.

P.S. Schon gesehen? Wir sind nun auch bei Facebook und Instagram – folgen Sie uns gerne!

Ansprechpartner
Immobilienmakler Moers

IL Immobilien GmbH
Uerdinger Straße 13
47441 Moers
Tel. 02841 6085475
kunden@il-immobilien-moers.de

Anfrage zur ImmobilieAnfrage zur Immobilie