Daten

  • Objekt-Nr.0342
  • OrtDuisburg
  • ObjektartReiheneck
  • Zimmer5
  • Baujahr1982
  • Grundstück290.00 m²
  • Wohnfläche142.00 m²
  • Schlafzimmer4
  • Badezimmer2
  • separate WCs1
  • Balkone1
  • Terrassen1
  • Stellplätze1
  • Garagen1

Kosten

  • Kaufpreis Immobilie ist verkauft
  • Käuferprovision2,975 % inkl. MwSt..

Objekt

Dieses schöne Reihen-Eckhaus bietet Ihnen ein neues Zuhause auf einer großzügigen Wohnfläche von 142 m².

Im Erdgeschoss empfängt Sie ein Eingangsbereich mit Gäste-WC. Die moderne Küche ist sehr gut ausgestattet und sogar im Kaufpreis enthalten. Im geräumigen hellen Wohnzimmer mit Essplatz für die ganze Familie sorgt ein Kaminofen für behagliche Wärme. Vom Wohnzimmer aus gelangen Sie durch ein Schiebe-Element-Fenster auf die nach Süd-Westen ausgerichtete Terrasse und in den Garten. Hier genießen Sie Sonnenstunden in entspannter Atmosphäre.

Das Obergeschoss überzeugt durch insgesamt 3 Schlafzimmer, die als Elternschlafzimmer, Kinderzimmer und Büro nutzbar sind, sowie ein Bad mit Badewanne und Dusche. Ein Highlight ist die Loggia zur Gartenseite.

Im ausgebauten Dachgeschoss stehen Ihnen noch ein weiterer großer Raum und ein Bad mit Dusche zur Verfügung. Das Platzangebot in diesem Haus lässt keine Wünsche offen.

Über den Treppenabgang im Erdgeschoss geht es in den Keller mit 3 Räumen für Vorräte, zum Waschen und Trocknen und für die Wasser-Wärmepumpe. Vom Keller aus führt eine Treppe in den schönen Garten.

Eine Garage direkt am Haus mit elektrischem Schwingtor bietet Platz für Ihr Fahrzeug und ist mit dem Garten durch eine Tür verbunden.

Ein Blick sagt mehr als 1.000 Worte ... da eine Immobilie immer eine individuelle Sache ist. Der persönliche Eindruck vor Ort ist durch nichts zu ersetzen.

Ausstattung

  • Konventionelle Bauweise, verklinkert
  • Dachgeschoss voll ausgebaut
  • Bad mit Dusche im OG
  • Fliesenböden im Erdgeschoss (2011)
  • Kaminofen
  • Loggia in der 1. Etage
  • Terrasse
  • Wasser-Wärmepumpe (2016)
  • Warmwasser-Aufbereitung mittels Durchlauferhitzer
  • Kunststofffenster 2-fach verglast
  • Rollläden teilweise elektrisch, teilweise manuell
  • Garage am Haus mit elektrischem Schwingtor
  • Küche (2011) im Kaufpreis enthalten

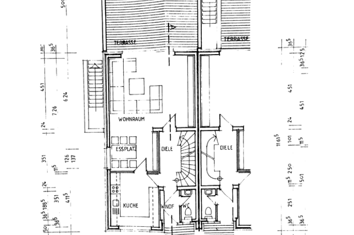
Grundrisse

Energieausweis

  • Energieausweistyp: Verbrauchsausweis
  • Verbrauchskennwert: 52.20 kWh/(m²*a)
  • Endenergiebedarf: kWh/(m²*a)
  • Gültigkeit: 2035-02-16
  • Wesentliche Energieträger:
  • Baujahr laut Energieausweis:
  • Energiekennwert:

Lage

Die Immobilie befindet sich in Rumeln, einem sehr beliebten und stark nachgefragten Stadtteil Duisburgs an der Grenze zu Moers und Krefeld. Das Haus liegt in einem ruhigen und gepflegten Wohnumfeld, das sowohl naturnahe Erholung als auch gute Anbindung an die städtische Infrastruktur bietet. Einkaufsmöglichkeiten, Schulen und Freizeitangebote erreichen Sie auf kurzen Wegen. Grüne Flächen und familienfreundliche Einrichtungen machen sie zu einem attraktiven Standort sowohl für junge Familien als auch ältere Paare.
Nur einige Minuten zu Fuß entfernt sind die Naherholungsgebiete Töppersee mit Wasserski-Anlage und Elfrather See mit all ihren Freizeitmöglichkeiten. Hier können Sie abschalten oder sportlich aktiv sein.
Darüber hinaus gewährleisten die gute Anbindung an den öffentlichen Nahverkehr sowie die Autobahnen BAB 40 und A 57 eine schnelle Erreichbarkeit der Städte des Ruhrgebiets und des Düsseldorfer Großraums inkl. Flughafen.

Sonstige Angaben

Sollten Sie die Veräußerung Ihrer jetzigen Immobilie in Betracht ziehen, sprechen Sie uns an.

Nutzen Sie unseren „Alles-aus-einer-Hand-Service“.

Gerne stehen wir Ihnen für alle Ihre Fragen, Wünsche und Anregungen rund um den Immobilienerwerb und –verkauf zur Seite.

Alle im Angebot veröffentlichten Angaben, Daten sowie Informationen beruhen auf Angaben des Eigentümers bzw. sind aus Objektinformationen entnommen. Für die Richtigkeit dieser Aussagen sowie Schreibfehler übernehmen wir keine Haftung.

Wir bitten um Ihr Verständnis, dass wir nur vollständig ausgefüllte Kontaktformulare bearbeiten können.

Besuchen Sie unsere Homepage www.il-immobilien-moers.de. Hier finden Sie weitere interessante Angebote.

Ansprechpartner
Immobilienmakler Moers

IL Immobilien GmbH
Uerdinger Straße 13
47441 Moers
Tel. 02841 6085475
kunden@il-immobilien-moers.de

Anfrage zur ImmobilieAnfrage zur Immobilie