Interessant für den Handwerker! Doppelhaushälfte in ruhiger Lage von Duisburg-Homberg

Daten
- Objekt-Nr.0235
- OrtDuisburg
- ObjektartDoppelhaushälfte
- Zimmer4
- Baujahr1896
- Grundstück505.00 m²
- Wohnfläche103.00 m²
- Schlafzimmer2
- Badezimmer1
- Stellplätze1
Kosten
- Kaufpreis Immobilie ist verkauft
- Käuferprovision3,57 inkl. Mwst..
Objekt
Diese Doppelhaushälfte eignet sich ideal für Handwerker, die die Immobilie nach eigenen Vorstellungen modernisieren und sanieren, um sich ihr Zuhause individuell zu gestalten.
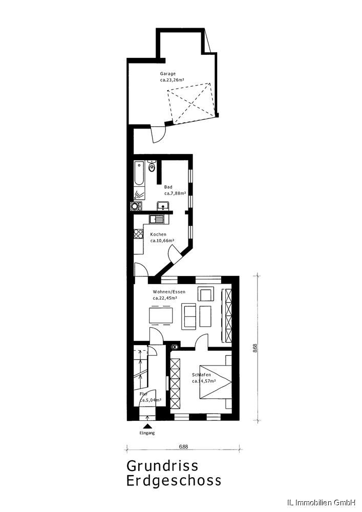
Die ca. 103 m² Wohnfläche verteilen sich auf Erd- und Obergeschoss.
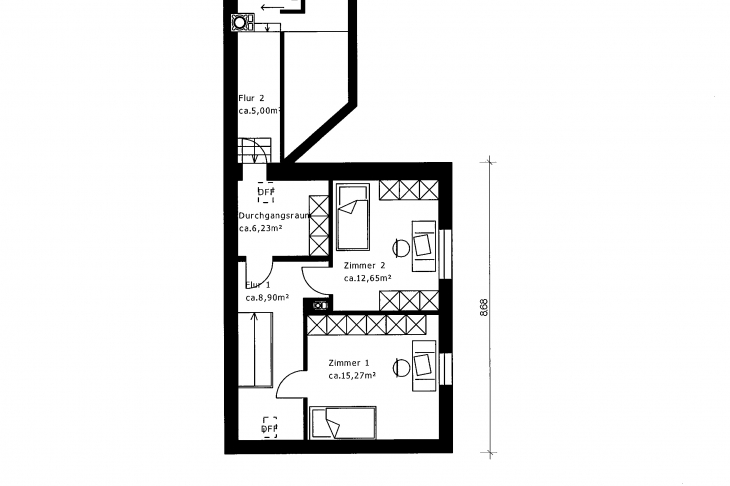
Im Erdgeschoss befinden sich die Diele, ein Wohnzimmer, ein Schlafzimmer, die Küche und das Badezimmer mit Dusche und Badewanne. Über eine Holztreppe gelangen Sie zu weiteren 2 Schlafzimmern im Obergeschoss. Hier haben Sie auch einen weiteren kleineren Raum zur Verfügung zum Beispiel für einen Arbeitsplatz.
Ein Kellerraum steht Ihnen ebenfalls zur Verfügung.
Der große rückwärtige Garten bietet Platz für Ruhe und Entspannung und gesellige Abende mit Freunden. Sogar der Anbau von Obst und Gemüse zur Selbstversorgung könnte sich anbieten.
Durch das seitlich gelegene weiße Doppeltor fahren Sie mit Ihrem PKW direkt auf das Grundstück.
Da wir zur Zeit wegen der Aktendigitalisierung keine Möglichkeit zu Akteneinsicht bekommen, können wir keine Aussage dazu machen, ob alle Bauwerke baurechtsmäßig genehmigt sind.
Ein Blick sagt mehr als 1.000 Worte... ... diese Immobilie ist etwas Besonderes und selten zu finden. Der persönliche Eindruck vor Ort ist durch nichts zu ersetzen. Zögern Sie also nicht und vereinbaren Sie mit uns einen unverbindlichen Besichtigungstermin.
Ausstattung
- Verklinkert
- Alu-Fenster 2-fach verglast
- Warmwasseraufbereitung mittels Durchlauferhitzer
- Teilunterkellert
- Holzfussboden
- Teppichboden
- Fliesen
- Holzdecken
- Rollläden teilweise elektrisch
- Sat-Anlage
- Bad mit Dusche und Badewanne
- Garten in Südlage
- Sehr großer Garten mit viel Platz und Möglichkeit für Obstund Gemüseanbau
- Stellplatz
- Direkte Fahrt auf das Grundstück möglich
Grundrisse
Energieausweis
- Energieausweistyp: Bedarfsausweis
- Endenergiebedarf: 287.50 kWh/(m²*a)
- Gültigkeit: 2032-01-23
- Wesentliche Energieträger: Gas
- Baujahr laut Energieausweis: 1896
- Energiekennwert: H
Lage
Duisburg ist eine kreisfreie Großstadt, die an der Mündung der Ruhr in den Rhein liegt. Die Stadt gehört der Metropolregion Rhein-Ruhr mit rund zehn Millionen Einwohnern an und ist Teil der wunderschönen Gegend am Niederrhein und des einzigartigen Ruhr-gebiets. Mit knapp einer halben Million Einwohnern ist Duisburg nach Köln, Düsseldorf, Dortmund und Essen die fünftgrößte Stadt in Nordrhein-Westfalen.
Auch wenn man heute vom Duisburger Westen spricht, zu dem Homberg, Hochheide, Baerl und Rheinhausen gerechnet werden, so ist die Nähe zur Stadt Moers allgegenwärtig. Hochheide, immer noch eng verbunden mit Alt-Homberg, geht ohne erkennbare Grenze in die Stadt Moers im Westen über. Das Moerser Erholungsgebiet Schwafheim wie auch das Duisburger Naherholungsgebiet Uettelsheimer See liegen in unmittelbarer Umgebung und versprechen wertvolle Auszeiten in der Natur. Unzählige Grünanlagen mit altem Baumbestand sowie die wunderbaren Rheinauen ergänzen die naheliegenden Seen zu einem Biotop-Verbund.
Das Objekt liegt im Ortsteil Duisburg-Homberg / Hocheide in einer ruhigen Wohnlage und gewachsenen Wohnlage. Diverse Einkaufsmöglichkeiten, Ärzte, Schulen und Kindergarten sind kurzfristig erreichbar und die Autobahnen A40, A42 und A57 sorgen für eine optimale Anbindung.
Sonstige Angaben
Sollten Sie die Veräußerung Ihrer jetzigen Immobilie in Betracht ziehen, sprechen Sie uns an.
Nutzen Sie unseren „Alles-aus-einer-Hand-Service“.
Gerne stehen wir Ihnen für alle Ihre Fragen, Wünsche und Anregungen rund um den Immobilienerwerb und –verkauf zur Seite.
Alle im Angebot veröffentlichten Angaben, Daten sowie Informationen beruhen auf Angaben des Eigentümers bzw. sind aus Objektinformationen entnommen. Für die Richtigkeit dieser Aussagen sowie Schreibfehler übernehmen wir keine Haftung.
Wir bitten um Ihr Verständnis, dass wir nur vollständig ausgefüllte Kontaktformulare bearbeiten können.
Besuchen Sie unsere Homepage www.il-immobilien-moers.de. Hier finden Sie weitere interessante Angebote.